Arizona

Multi-Family Residential | San Diego, CA | 6,725 SF | Alex Miller Architects

Specifications

Area of site: 7,000 SF

Date: 2024

Status of project: Under construction

Tools used: AutoCAD

Roles: SD, DD, CD, CA

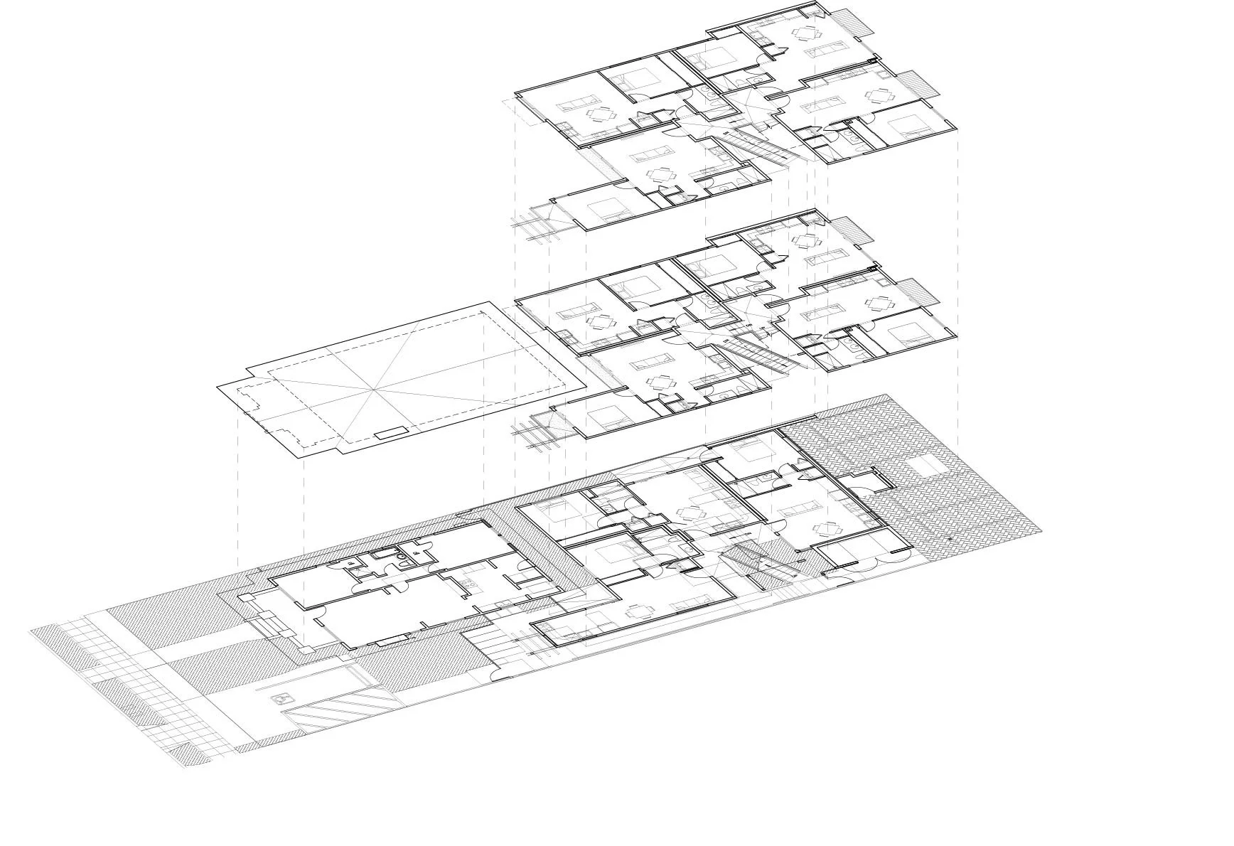
North Park, San Diego - 2024

 

Our design approach for a new three-story, multi-family building with a total of twelve units centered on introducing modern, sustainable housing. While we focused on preserving the existing historic home on site, this also allowed us to maintain the character and rhythm of the existing street-scape.

The resulting design allows for contemporary feel with sensitivity, integrating new construction behind the existing home. This approach allows for increased housing density while still honoring the neighborhood’s architectural heritage and maintaining a thoughtful blend of preservation and urban infill development.